 |
Український клуб фанів FIAT / CLUB UCRAINO TIFOSO DELLA FIAT
|
 |
| Предыдущая тема :: Следующая тема |
| Автор |
Сообщение |
Bilders Италомафиози


Возраст: 41 Знак зодиака:  Зарегистрирован: 28.09.2012 Сообщения: 930 Откуда: Київ
Авто: Punto 60 SX 1.2 (Малиш)
|
Добавлено: Ср Июн 03, 2015 12:37 Заголовок сообщения: Загорівся індикатор подушки безпеки на Punto 176 і не гасне. |
|
|
Описував дану проблему в бортовичку, оскільки дану проблему не вирішив, хотів би її якось відокремити, можливо комусь в подальшому інфа і пригодиться.
Отже цитую: «після заведення пунтиша-малиша, коли всі індикатори погасли не гасне подушка безпеки.
Чи не вийде так що лупане десь в дорозі мало не покажеться.
Де найти запобіжник який відповідає за подушку і чи можна його якось провірити. Морально забити на загорівшися індикатор не можу. Відкрутити лампочку і забити - чи не приведе це до чогось негативного, від’єднав уже і клеми на ніч з акумулятора, від’єднав від панельки кріплення, від'єднанв і під панелею провід який йде від подушки без міно. Розібрав подушку від’єднав кріплення лампочка не погасла... Є у когось поради???»
Методом тика розібрався де находиться запобіжник, самого верху третій зліва, попередній відповідає за магнітолу. Там стоїть запобіжник на 15, але він відповідає за майже всю панель. Так що як щоб він перегорів то і не працювали і інші індитакори. Принаймні б не горіли. Чи як в чому його суть?
От горить лампочка, а треба щоб вона погоріла і погасла. Варіант щоб не горіла взагалі уже знаємо, як можна організувати: 1. Вийняти лампочку. 2. Вийняти запобіжник – перестане горіти вся панель. 3. Витягнути біле кріплення з жовтим товстим дротом під кермом фактично біля педалі газу.
Але це все не приводе до правильності його погашення.
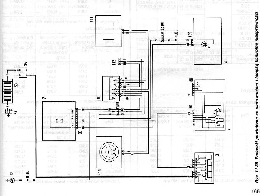
Нарив креслення, бо в мануалі окрім об означення нічого немає.
Пару уточнень в даній модифікації дві подушки безпеки.
| Описание: |
|
| Размер: |
70.24 KB |
| Просмотрено: |
228 раз(а) |

|
| Описание: |
|
| Размер: |
231.01 KB |
| Просмотрено: |
233 раз(а) |

|
_________________ "НЕБЕСНА СОТНЯ"
Герої нашого часу
ГЕРОЇ НЕ ВМИРАЮТЬ!!! |
|
| Вернуться к началу |
|
 |
StarsOn Клубный казначей


Возраст: 37 Знак зодиака:  Зарегистрирован: 08.09.2007 Сообщения: 6097 Откуда: Киев (Дарница)
Авто: Fiat Punto GT 1.4 Turbo-монстрик, Citroen GP1 Кот-Бегемот
|
Добавлено: Ср Июн 03, 2015 13:32 Заголовок сообщения: |
|
|
Может сама подушка перестала давать признаки жизни?
Лучше подъедь к Олегу электрику с Жекой Creator работает
_________________ Fiat Punto GT 1.4 Turbo-монстрик
ZFA17600000002578 |
|
| Вернуться к началу |
|
 |
|
|
Вы не можете начинать темы Вы не можете отвечать на сообщения Вы не можете редактировать свои сообщения Вы не можете удалять свои сообщения Вы не можете голосовать в опросах Вы не можете присоединять файлы в этом форуме Вы можете скачивать файлы в этом форуме
|
Powered by phpBB © 2001, 2005 phpBB Group
|