Сайт Українського клуба фанів FIAT Український клуб фанів FIAT / CLUB UCRAINO TIFOSO DELLA FIAT

 
ФотогалереяФотогалерея   FAQFAQ   ПоискПоиск   ПользователиПользователи   ГруппыГруппы   РегистрацияРегистрация 
 ПрофильПрофиль   Войти и проверить личные сообщенияВойти и проверить личные сообщения   ВходВход 

Контрольные точки геометрии кузова автомобиля Fiat Tipo
На страницу 1, 2  След.
 
Начать новую тему   Ответить на тему    Список форумов Український клуб фанів FIAT / CLUB UCRAINO TIFOSO DELLA FIAT -> FIAT Tipo, FIAT Tempra
Предыдущая тема :: Следующая тема  
Автор Сообщение
Медузов
Италомафиози


Италомафиози

Возраст: 37
Знак зодиака: Рыбы
Зарегистрирован: 14.09.2010
Сообщения: 1046
Откуда: Киев

Авто: Range Rover Sport LR-TDV6 3,0

СообщениеДобавлено: Вс Сен 18, 2011 19:34    Заголовок сообщения: Контрольные точки геометрии кузова автомобиля Fiat Tipo Ответить с цитатой

помогите найти правильные цифры по геометрии данной модели
Вернуться к началу
Посмотреть профиль Отправить личное сообщение
=aleks=
Италоманьячище


Италоманьячище

Возраст: 49
Знак зодиака: Лев
Зарегистрирован: 06.10.2009
Сообщения: 8633
Откуда: Харьков

Авто: была Tempra2.0 теперьTоyota carina-e 93 1.6

СообщениеДобавлено: Вс Сен 18, 2011 21:09    Заголовок сообщения: Ответить с цитатой

в книжке должны быть!!
_________________
Бортовик Темпра
Вернуться к началу
Посмотреть профиль Отправить личное сообщение
Медузов
Италомафиози


Италомафиози

Возраст: 37
Знак зодиака: Рыбы
Зарегистрирован: 14.09.2010
Сообщения: 1046
Откуда: Киев

Авто: Range Rover Sport LR-TDV6 3,0

СообщениеДобавлено: Вс Сен 18, 2011 21:12    Заголовок сообщения: Ответить с цитатой

=aleks= писал(а):
в книжке должны быть!!


а где ее найти?
Вернуться к началу
Посмотреть профиль Отправить личное сообщение
=aleks=
Италоманьячище


Италоманьячище

Возраст: 49
Знак зодиака: Лев
Зарегистрирован: 06.10.2009
Сообщения: 8633
Откуда: Харьков

Авто: была Tempra2.0 теперьTоyota carina-e 93 1.6

СообщениеДобавлено: Вс Сен 18, 2011 21:14    Заголовок сообщения: Ответить с цитатой

на базаре купить или в нете заказать или у соклубников местных одолжить!! Rolling Eyes Rolling Eyes
_________________
Бортовик Темпра
Вернуться к началу
Посмотреть профиль Отправить личное сообщение
DIN
Италоманьячище


Италоманьячище

Возраст: 57
Знак зодиака: Лев
Зарегистрирован: 30.03.2006
Сообщения: 7610
Откуда: г.Харьков

Авто: 155 1993г.в. + Джульетта 1984г.в.

СообщениеДобавлено: Вс Сен 18, 2011 21:55    Заголовок сообщения: Ответить с цитатой

есть Дедра
_________________
лучше с другом потерять чем с дураком найти
Вернуться к началу
Посмотреть профиль Отправить личное сообщение Отправить e-mail
Медузов
Италомафиози


Италомафиози

Возраст: 37
Знак зодиака: Рыбы
Зарегистрирован: 14.09.2010
Сообщения: 1046
Откуда: Киев

Авто: Range Rover Sport LR-TDV6 3,0

СообщениеДобавлено: Вс Сен 18, 2011 22:07    Заголовок сообщения: Ответить с цитатой

нужна типа
_________________
звуковое оборудование, скидки
www.upsound.com.ua http://upsound.com.ua/translyacionnoe-oborudovanie Большой выбор оборудования для озвучки кафе, ресторанов и магазинов.
Вернуться к началу
Посмотреть профиль Отправить личное сообщение
=aleks=
Италоманьячище


Италоманьячище

Возраст: 49
Знак зодиака: Лев
Зарегистрирован: 06.10.2009
Сообщения: 8633
Откуда: Харьков

Авто: была Tempra2.0 теперьTоyota carina-e 93 1.6

СообщениеДобавлено: Вс Сен 18, 2011 22:14    Заголовок сообщения: Ответить с цитатой

Медузов
платформа одна.что типо,темпра,дедра и какя та альфа.

_________________
Бортовик Темпра
Вернуться к началу
Посмотреть профиль Отправить личное сообщение
Perepic
Италоманьячище


Италоманьячище

Возраст: 43
Знак зодиака: Телец
Зарегистрирован: 15.02.2008
Сообщения: 4742
Откуда: Харьков, Киев

Авто: Tempra 92' -> Renault Megane II 06'

СообщениеДобавлено: Вс Сен 18, 2011 22:23    Заголовок сообщения: Ответить с цитатой

=aleks= писал(а):
Медузов
платформа одна.что типо,темпра,дедра и какя та альфа.

155-я альфа Wink
Вернуться к началу
Посмотреть профиль Отправить личное сообщение
mitrij01
Италолюбитель


Италолюбитель

Возраст: 47
Знак зодиака: Водолей
Зарегистрирован: 30.11.2009
Сообщения: 77
Откуда: Чигирин

Авто: Tipo 1.6 SX 1993 карб

СообщениеДобавлено: Вс Сен 18, 2011 22:46    Заголовок сообщения: Ответить с цитатой

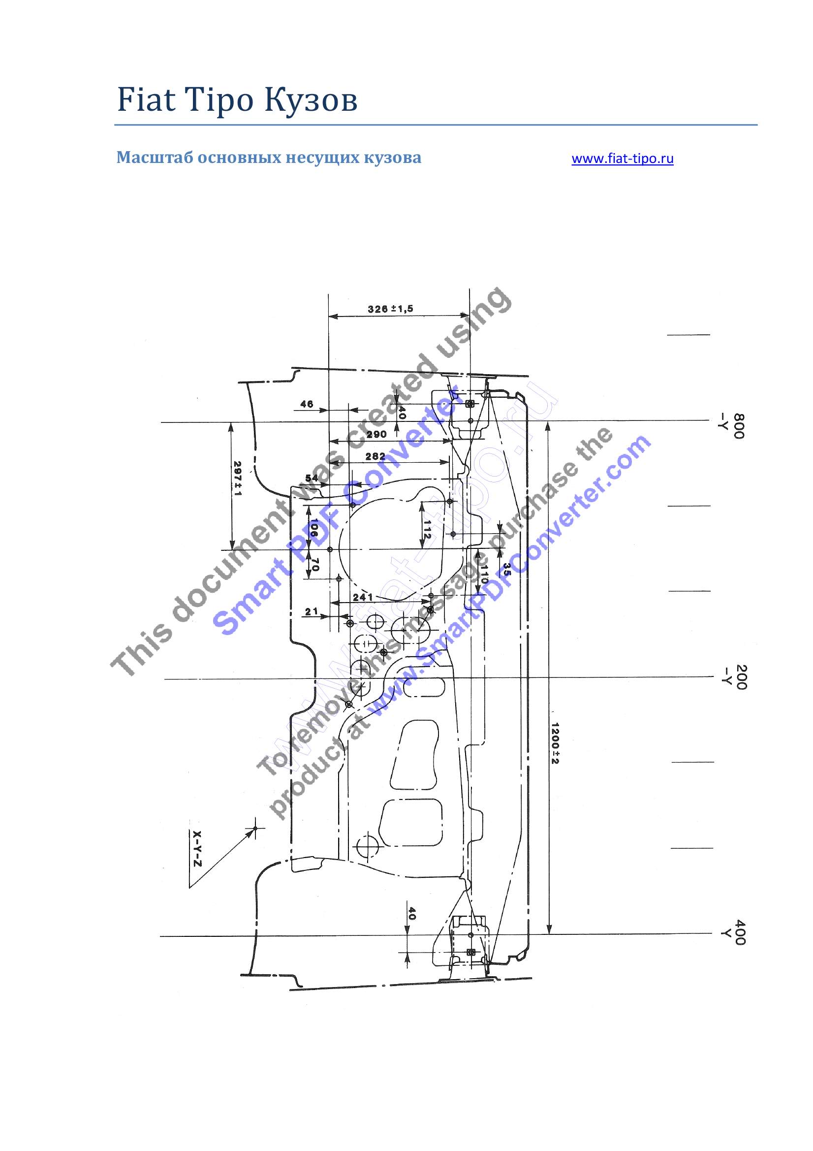
вот, правда в оригинале в .pdf чёткость лучше, но размер больше чем можно прикрепить.


Кузов Типо.doc
 Описание:

Скачать
 Имя файла:  Кузов Типо.doc
 Размер:  344 KB
 Загружен:  426 раз(а)

Вернуться к началу
Посмотреть профиль Отправить личное сообщение
Медузов
Италомафиози


Италомафиози

Возраст: 37
Знак зодиака: Рыбы
Зарегистрирован: 14.09.2010
Сообщения: 1046
Откуда: Киев

Авто: Range Rover Sport LR-TDV6 3,0

СообщениеДобавлено: Вс Сен 18, 2011 23:32    Заголовок сообщения: Ответить с цитатой

mitrij01 писал(а):
вот, правда в оригинале в .pdf чёткость лучше, но размер больше чем можно прикрепить.



огромное спасибо
Вернуться к началу
Посмотреть профиль Отправить личное сообщение
TroF_911
Италоманьячище


Италоманьячище

Возраст: 35
Знак зодиака: Рак
Зарегистрирован: 12.08.2007
Сообщения: 5104
Откуда: Київ (Святошино)

Авто: Fiat Tipo 1.6 m.i. DGT "92

СообщениеДобавлено: Вс Сен 18, 2011 23:34    Заголовок сообщения: Ответить с цитатой

Медузов
Не знаю как там схемы. но раз уж занялся геометрией и пока машина у сварщика. пусть проверит рамку багажника, чтобы потом крышка ложилась без зазоров и крылья не выпирали.

_________________
Ми всі однакові давно
Вам зрозуміти не дано
Що схід і захід за одно
Дайте пожити спокійно
Вернуться к началу
Посмотреть профиль Отправить личное сообщение Отправить e-mail
Медузов
Италомафиози


Италомафиози

Возраст: 37
Знак зодиака: Рыбы
Зарегистрирован: 14.09.2010
Сообщения: 1046
Откуда: Киев

Авто: Range Rover Sport LR-TDV6 3,0

СообщениеДобавлено: Пн Сен 19, 2011 10:26    Заголовок сообщения: Ответить с цитатой

TroF_911 писал(а):
Медузов
Не знаю как там схемы. но раз уж занялся геометрией и пока машина у сварщика. пусть проверит рамку багажника, чтобы потом крышка ложилась без зазоров и крылья не выпирали.



Спасибо за совет, сегодня как раз еду смотреть проделанную работу пока не собрал машину... Скажу и про багажник
Вернуться к началу
Посмотреть профиль Отправить личное сообщение
mitrij01
Италолюбитель


Италолюбитель

Возраст: 47
Знак зодиака: Водолей
Зарегистрирован: 30.11.2009
Сообщения: 77
Откуда: Чигирин

Авто: Tipo 1.6 SX 1993 карб

СообщениеДобавлено: Пн Сен 19, 2011 22:34    Заголовок сообщения: Ответить с цитатой

тут размеры чётче.


kuzov_0002.jpg
 Описание:
 Размер:  240.06 KB
 Просмотрено:  964 раз(а)

kuzov_0002.jpg



kuzov_0001.jpg
 Описание:
 Размер:  194.52 KB
 Просмотрено:  756 раз(а)

kuzov_0001.jpg


Вернуться к началу
Посмотреть профиль Отправить личное сообщение
t309
Италоманьячище


Италоманьячище

Возраст: 42
Знак зодиака: Телец
Зарегистрирован: 10.01.2009
Сообщения: 1335
Откуда: Львов

Авто: dedra

СообщениеДобавлено: Вт Сен 20, 2011 00:51    Заголовок сообщения: Ответить с цитатой

DIN
виложи на дедру пожалуста

_________________
฿:1C6gircuFWS6oE6ivUiHrxvafbjJQ3MbS5
Ніяких хабарів, відкатів, порушень законів та ПДР!
Yootube https://goo.gl/TcJrkr
Продам https://goo.gl/vxIwZB
Вернуться к началу
Посмотреть профиль Отправить личное сообщение
DRAGON
Италоманьячище


Италоманьячище

Возраст: 36
Знак зодиака: Стрелец
Зарегистрирован: 11.03.2009
Сообщения: 3211
Откуда: Кривой Рог

Авто: ВАЗ 2115

СообщениеДобавлено: Пт Окт 07, 2011 09:20    Заголовок сообщения: Ответить с цитатой

TroF_911

а где конкретно разъезжаются крылья? можно ткнуть носом? я лазил в багажнике, так и не понял где их рвет и почему они так торчат в разные стороны.

_________________
Никогда не бойся делать то, что не умеешь. Помни, ковчег был построен любителем. Профессионалы построили “Титаник”.
Вернуться к началу
Посмотреть профиль Отправить личное сообщение Отправить e-mail
Показать сообщения:   
Начать новую тему   Ответить на тему    Список форумов Український клуб фанів FIAT / CLUB UCRAINO TIFOSO DELLA FIAT -> FIAT Tipo, FIAT Tempra Часовой пояс: GMT + 3
На страницу 1, 2  След.
Страница 1 из 2

 
Перейти:  
Вы не можете начинать темы
Вы не можете отвечать на сообщения
Вы не можете редактировать свои сообщения
Вы не можете удалять свои сообщения
Вы не можете голосовать в опросах
Вы не можете присоединять файлы в этом форуме
Вы можете скачивать файлы в этом форуме






Powered by phpBB © 2001, 2005 phpBB Group
З питань розміщення реклами писати на цю адресу