Сайт Українського клуба фанів FIAT Український клуб фанів FIAT / CLUB UCRAINO TIFOSO DELLA FIAT

 
ФотогалереяФотогалерея   FAQFAQ   ПоискПоиск   ПользователиПользователи   ГруппыГруппы   РегистрацияРегистрация 
 ПрофильПрофиль   Войти и проверить личные сообщенияВойти и проверить личные сообщения   ВходВход 

Вопрос по супортам на панду
На страницу 1, 2  След.
 
Начать новую тему   Ответить на тему    Список форумов Український клуб фанів FIAT / CLUB UCRAINO TIFOSO DELLA FIAT -> Браття наші менші (FIAT Uno, FIAT Panda, Fiat Seicento, Fiat Cinquecento)
Предыдущая тема :: Следующая тема  
Автор Сообщение
polikolor
Италофан


Италофан

Возраст: 44
Знак зодиака: Весы
Зарегистрирован: 04.12.2007
Сообщения: 188
Откуда: Ровно

Авто: Fiat Panda old

СообщениеДобавлено: Чт Июн 05, 2008 01:30    Заголовок сообщения: Вопрос по супортам на панду Ответить с цитатой

Взял рем комплект, пыльник и резинка для снятия грязи- стандартный. Сам поршенёк работает. Жмёш на тормоз идёт вперёд, вот что б назад, то с очень большим трудом, пока штуцерок не открутиш и не станет при надавлении стравливатся тормозуха, можно так сказать ваще не идёт. Сам пыльник тонкий, так как новый и нерзбухший, когда его надевать на поршенёк и при этом под низ положить резинку грязесьёмную да и сам поршень не в самом нижнем положении, потому как колодки поджимает уже в среднем положении, пыльник выскакивает из паза наружной частью , в результате того что вытягивается и гофра вытягивает края из проёма. как правильно его поставить что б не повредить там отвёрткой к примеру при установлении. при том что разбирая супорта, этих самых, вторых резинок небыло.
_________________
just poli
Вернуться к началу
Посмотреть профиль Отправить личное сообщение
Dimmos
Италомафиози


Италомафиози

Возраст: 52
Знак зодиака: Водолей
Зарегистрирован: 10.08.2007
Сообщения: 1044
Откуда: Кострома

Авто: Регата 75, Марея 1.6

СообщениеДобавлено: Чт Июн 05, 2008 07:43    Заголовок сообщения: Ответить с цитатой

polikolor, что -то непонятно, что за "резинка для снятия грязи"? Кольцо с квадратным профилем?
Как может быть что: "потому как колодки поджимает уже в среднем положении, пыльник выскакивает из паза наружной частью , в результате того что вытягивается и гофра вытягивает края из проёма" ? - типа поршень дошел до средней части, а пыльник уже выпирает? Толщина дисков сколько примерно?
Вернуться к началу
Посмотреть профиль Отправить личное сообщение Отправить e-mail
polikolor
Италофан


Италофан

Возраст: 44
Знак зодиака: Весы
Зарегистрирован: 04.12.2007
Сообщения: 188
Откуда: Ровно

Авто: Fiat Panda old

СообщениеДобавлено: Чт Июн 05, 2008 09:31    Заголовок сообщения: Ответить с цитатой

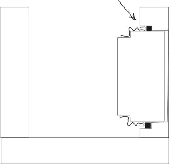
да, кольцо с квадратным профелем, в книжке по панде написано дёрти клиан - что первести буквально кольцо для снятия грязи, тормозной диск- я так понял- нормальная толщина- нету микрометра померять но износ не большой в пределах 2-2,5 десятки. колодки тож наманые. попробую нарисовать схематично


Graphic12334.jpg
 Описание:

Скачать
 Имя файла:  Graphic12334.jpg
 Размер:  7.5 KB
 Загружен:  1026 раз(а)


_________________
just poli
Вернуться к началу
Посмотреть профиль Отправить личное сообщение
polikolor
Италофан


Италофан

Возраст: 44
Знак зодиака: Весы
Зарегистрирован: 04.12.2007
Сообщения: 188
Откуда: Ровно

Авто: Fiat Panda old

СообщениеДобавлено: Чт Июн 05, 2008 09:39    Заголовок сообщения: Ответить с цитатой

вот вопрос скорее такого характера - когда ставить новые пыльники что цилиннд взавливать до конца??? и второй как правильно вложить пыльник в паз- вернее чем что б его не повредить- да и там, напрочь отсуствует какой либо буртик что б держался пыльник и не выскиквал- потому как для того что б он поджал колодки всё равно надо что б он вышел намного больше чем первоначчальное положение- вот тут то и происходит выскакивание.
_________________
just poli
Вернуться к началу
Посмотреть профиль Отправить личное сообщение
sss
Италомафиози


Италомафиози

Возраст: 52
Знак зодиака: Телец
Зарегистрирован: 14.02.2007
Сообщения: 748
Откуда: Украина, Запорожье

Авто: Fiat Tempra 1,6карб.,96г.в.

СообщениеДобавлено: Чт Июн 05, 2008 09:41    Заголовок сообщения: Ответить с цитатой

polikolor
Не знаю как в Панде, но на моей в теле супорта две канавки.Та что глубже для удержания тормоз.жидкости. а та что к наруже для удержания грязезащищающего пыльника.

_________________
Вернуться к началу
Посмотреть профиль Отправить личное сообщение Отправить e-mail
Dimmos
Италомафиози


Италомафиози

Возраст: 52
Знак зодиака: Водолей
Зарегистрирован: 10.08.2007
Сообщения: 1044
Откуда: Кострома

Авто: Регата 75, Марея 1.6

СообщениеДобавлено: Чт Июн 05, 2008 10:55    Заголовок сообщения: Ответить с цитатой

polikolor, да, sss верно говорит, ты скорее всего неправильно нарисовал рисунок, там должная быть вторая канавка под кольцо. в книге у тебя скорее всего неправильный перевод или ошибка, колечко это называется манжетой, наиважнейшая часть. А подклинивает у тебя цилиндр от того, что под этой манжетой образовались окислы и грязь, будешь извлекать старое кольцо, тщательно очисти канавку.

А собирать так: манжету и глубокую канавку смазываешь вазелином, вставляешь манжету поплотнее, поршень хорошо очищаешь от наростов, смазываешь вазелином и загоняешь до упора в суппорт, затем закладываешь в открывшийся паз пыльник. Поршень подводишь сжатым воздужом в рабочее положение, чтобы правильно натянуть пыльник на поршень.
Вернуться к началу
Посмотреть профиль Отправить личное сообщение Отправить e-mail
polikolor
Италофан


Италофан

Возраст: 44
Знак зодиака: Весы
Зарегистрирован: 04.12.2007
Сообщения: 188
Откуда: Ровно

Авто: Fiat Panda old

СообщениеДобавлено: Чт Июн 05, 2008 11:57    Заголовок сообщения: Ответить с цитатой

Поршенёк при ходе вперёд не клинит, он не возвращается назад пока не открутиш штуцерок для прокачки. манжетки там небыло когда разбирал, только пыльник. Я перевернул супорт поршнем вверх и залил туда жидкости для удаления ржавчины в канавку где должна была вставлятся манжетка. Рисунок нарисован правильно- потому как я рисовал что видел и там небыло никаких канавок одно углубление без всяких выступов. возможно оно отмокнет за сутки другие и они появятся, а так стенки были ровные что на цылиндре что на поршеньке без выступов для удержания пыльника и тд и тп.
_________________
just poli
Вернуться к началу
Посмотреть профиль Отправить личное сообщение
polikolor
Италофан


Италофан

Возраст: 44
Знак зодиака: Весы
Зарегистрирован: 04.12.2007
Сообщения: 188
Откуда: Ровно

Авто: Fiat Panda old

СообщениеДобавлено: Чт Июн 05, 2008 12:04    Заголовок сообщения: Ответить с цитатой

Так поршенёк сжатым воздухом выдавливается - получается его надо вытянуть ?? из цылиндра?? или всётаки вдавить в цылиндр?? потому как начальная форма пыльника не выпуклая как например пыльник для кулака привода а ровная, логичнее было его вдавить нежели вытягивать при этом пыльник труднее правильно надеть - потому как его нужно растягивать - деформировать в отличии от нормального состояния от сюда и получается у меня, что если канавок нет он не закрепляется соотвецтвенно и выскакивает вот
_________________
just poli
Вернуться к началу
Посмотреть профиль Отправить личное сообщение
Dimmos
Италомафиози


Италомафиози

Возраст: 52
Знак зодиака: Водолей
Зарегистрирован: 10.08.2007
Сообщения: 1044
Откуда: Кострома

Авто: Регата 75, Марея 1.6

СообщениеДобавлено: Чт Июн 05, 2008 13:05    Заголовок сообщения: Ответить с цитатой

polikolor, я написал всё подробно, читай внимательно. Допускаю, что у тебя другая конструкция суппорта, но сильно сомневаюсь.
Пыльник у всех машин одевается или снаружи на поясок, или вставляется внутрь в канавку. Если у тебя нет ни того, ни другого, возможно что у тебя было в канавку, но буртик суппорта отгнил, и зацепиться резинке не за что.
Осмотри всё внимательно
Вернуться к началу
Посмотреть профиль Отправить личное сообщение Отправить e-mail
polikolor
Италофан


Италофан

Возраст: 44
Знак зодиака: Весы
Зарегистрирован: 04.12.2007
Сообщения: 188
Откуда: Ровно

Авто: Fiat Panda old

СообщениеДобавлено: Чт Июн 12, 2008 11:57    Заголовок сообщения: Ответить с цитатой

разобрался в данной конструкции ставится один пыльник потому как если ставить манжетку на пыльник не остаётся места.
_________________
just poli
Вернуться к началу
Посмотреть профиль Отправить личное сообщение
ПАНДА 4Х4
Италолюбитель


Италолюбитель

Возраст: 53
Знак зодиака: Водолей
Зарегистрирован: 08.09.2009
Сообщения: 77
Откуда: Днепропетровск

Авто: фиат панда 4х4

СообщениеДобавлено: Пн Сен 14, 2009 14:39    Заголовок сообщения: Ответить с цитатой

Являюсь владельцем пандочки 91г.в Cool . Назрела необходимость замены передних стоек и саленблоков. С новыми проблема, обещали привезти, но человек пропал да и цена запредельная. Вопрос, как решали данную проблему? Ремонт или подбор: ока, ваз и.т.д. Проблема с механизмом привода стекол в дверях. Возможен ремонт, или замена на что?
Вернуться к началу
Посмотреть профиль Отправить личное сообщение
ПАНДА 4Х4
Италолюбитель


Италолюбитель

Возраст: 53
Знак зодиака: Водолей
Зарегистрирован: 08.09.2009
Сообщения: 77
Откуда: Днепропетровск

Авто: фиат панда 4х4

СообщениеДобавлено: Пн Сен 14, 2009 14:55    Заголовок сообщения: Ответить с цитатой

Являюсь владельцем пандочки 91г.в Cool . Назрела необходимость замены передних стоек и саленблоков. С новыми проблема, обещали привезти, но человек пропал да и цена запредельная. Вопрос, как решали данную проблему? Ремонт или подбор: ока, ваз и.т.д. Проблема с механизмом привода стекол в дверях. Возможен ремонт, или замена на что?
Вернуться к началу
Посмотреть профиль Отправить личное сообщение
Paul
Италомафиози


Италомафиози

Возраст: 44
Знак зодиака: Скорпион
Зарегистрирован: 28.03.2007
Сообщения: 1115
Откуда: пгт. Киев

Авто: Autobianchi A112, Lancia Dedra 2.0 i.e.

СообщениеДобавлено: Пн Сен 14, 2009 15:06    Заголовок сообщения: Ответить с цитатой

ПАНДА 4Х4 писал(а):
Являюсь владельцем пандочки 91г.в Cool . Назрела необходимость замены передних стоек и саленблоков. С новыми проблема, обещали привезти, но человек пропал да и цена запредельная. Вопрос, как решали данную проблему? Ремонт или подбор: ока, ваз и.т.д. Проблема с механизмом привода стекол в дверях. Возможен ремонт, или замена на что?


по поводу замены стоек - найти в принципе при определенном желании можно и родные, по механизму стеклоподъемников тоже есть проблемы, хотел установить реечные универсальные (смотрел в сторону таких http://www.azvuk.ua/info_2871.htm), да не срослось пока......

_________________
Вернуться к началу
Посмотреть профиль Отправить личное сообщение
ПАНДА 4Х4
Италолюбитель


Италолюбитель

Возраст: 53
Знак зодиака: Водолей
Зарегистрирован: 08.09.2009
Сообщения: 77
Откуда: Днепропетровск

Авто: фиат панда 4х4

СообщениеДобавлено: Пн Сен 14, 2009 15:37    Заголовок сообщения: Ответить с цитатой

«Мыханызьм» конечно красивый. Но возникают сомнения, что он пройдет в узкую щель в двери размер примерно 180х400мм, да и толщена двери ваза больше пандовской. Передние стойки оценили в 1800 грн. за комплект. По мне дороговато. Других вариантов пока нет, и это угнетает.
Вернуться к началу
Посмотреть профиль Отправить личное сообщение
Taras_Potatos
Рулевой филиала


Рулевой филиала

Возраст: 48
Знак зодиака: Козерог
Зарегистрирован: 24.07.2006
Сообщения: 22630
Откуда: м. Львів

Авто: Fiat Punto HGT

СообщениеДобавлено: Пн Сен 14, 2009 15:48    Заголовок сообщения: Ответить с цитатой

Монро на Екзисті 600 грн .... http://www.exist.ru/price.aspx?sr=29&pid=B3C00E56
_________________
This message was sent without a virus, please destroy some files by yourself.

/oo|_\__Ⓐ__/_|oo\
Вернуться к началу
Посмотреть профиль Отправить личное сообщение
Показать сообщения:   
Начать новую тему   Ответить на тему    Список форумов Український клуб фанів FIAT / CLUB UCRAINO TIFOSO DELLA FIAT -> Браття наші менші (FIAT Uno, FIAT Panda, Fiat Seicento, Fiat Cinquecento) Часовой пояс: GMT + 3
На страницу 1, 2  След.
Страница 1 из 2

 
Перейти:  
Вы не можете начинать темы
Вы не можете отвечать на сообщения
Вы не можете редактировать свои сообщения
Вы не можете удалять свои сообщения
Вы не можете голосовать в опросах
Вы не можете присоединять файлы в этом форуме
Вы можете скачивать файлы в этом форуме






Powered by phpBB © 2001, 2005 phpBB Group
З питань розміщення реклами писати на цю адресу